API 602 Swing Check Valve in Material ASTM B148 C95500

Aluminum Bronze ASTM B148 C95500 for sea water.

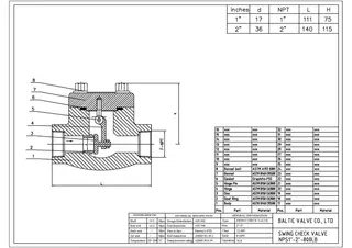
We finished and delivered several special material check valves to one of our customers in Mexico. Details are as follows.

Product description:

API 602 swing check valve.
***Bolted cover.
***Body/cover: ASTM B148 C95500. 
***Disc: ASTM B150 C63000.
***Trim: ASTM B150 C63000.

***End connection: FNPT as per ASME B1.20.1. 
***Face to face dimension as per MFG STD.

Item 1) 2 inch - 800 lb.
Item 2) 1 inch - 800 lb.

API 602 Swing Check Valve in Material ASTM B148 C95500

API 602 Swing Check Valve in Material ASTM B148 C95500

API 602 Swing Check Valve in Material ASTM B148 C95500

API 602 Swing Check Valve in Material ASTM B148 C95500

API 602 Swing Check Valve in Material ASTM B148 C95500

API 602 Swing Check Valve in Material ASTM B148 C95500

The Drawing

BALTIC VALVE CO., LTD.
DATED NOV. 09th, 2020.

Send your message to this supplier


Related Articles from the Supplier

Related Articles from China Manufacturers

Related Products Mentioned in the Article

balticvalve

balticvalve

  • http://www.baltic-valve.com/
  • Address: 厦门市思明区新景海韵园225号602室
  • Phone: 0592-8266140
  •  
  • Business Type: Trading,

Supplier Website

Source: https://www.baltic-valve.com/news/api-602-swing-check-valve-in-material-astm-b148-c95500.html