
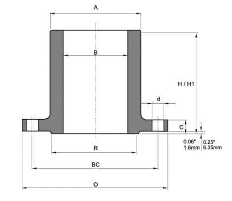
| Nominal Pipe Size |
Outside Diameter |
Thickness of Flange Min. |
O.D. of Raised Face |
Hub Diameter at Bevel |
Diameter of Bore |
Length Through Hub | Diameter of Bolt Circle |
Number of Holes |
Diameter of Holes |
|
| O | C | R | A | B | H | H1 | BC | d | ||
| 1" | 124. 0 | 17.5 | 50.8 | 54 | 25.4 | 228. 6 | 304. 8 | 88.9 | 4 | 19 |
| 1-1/4" | 133. 5 | 20.6 | 63.5 | 63.5 | 31.8 | 228. 6 | 304. 8 | 98.4 | 4 | 19 |
| 1-1/2" | 155. 5 | 22.2 | 73 | 69.8 | 38.1 | 228. 6 | 304. 8 | 114. 3 | 4 | 22.5 |
| 2" | 165. 0 | 25.4 | 92.1 | 82.5 | 50.8 | 228. 6 | 304. 8 | 127. 0 | 8 | 19 |
| 2-1/2" | 190. 5 | 28.6 | 104. 8 | 100. 0 | 63.5 | 228. 6 | 304. 8 | 149. 2 | 8 | 22.5 |
| 3" | 209. 5 | 31.8 | 127. 0 | 117. 5 | 76.2 | 228. 6 | 304. 8 | 168. 1 | 8 | 22.5 |
| 3-1/2" | 228. 5 | 34.9 | 139. 7 | 133. 4 | 88.9 | 228. 6 | 304. 8 | 184. 2 | 8 | 25.5 |
| 4" | 273. 0 | 38.1 | 157. 2 | 152. 4 | 101. 6 | 228. 6 | 304. 8 | 215. 9 | 8 | 25.5 |
| 5" | 330. 0 | 44.5 | 185. 7 | 190. 5 | 127. 0 | 228. 6 | 304. 8 | 266. 7 | 8 | 28.5 |
| 6" | 355. 5 | 47.6 | 215. 9 | 222. 2 | 152. 4 | 228. 6 | 304. 8 | 292. 1 | 12 | 28.5 |
| 8" | 419. 0 | 55.6 | 269. 9 | 273. 0 | 203. 2 | 228. 6 | 304. 8 | 349. 3 | 12 | 31.8 |
| 10" | 508. 0 | 63.5 | 323. 9 | 342. 9 | 254. 0 | 228. 6 | 304. 8 | 431. 8 | 16 | 35.1 |
| 12" | 559. 0 | 66.7 | 381. 0 | 400. 0 | 304. 8 | 228. 6 | 304. 8 | 489. 0 | 20 | 35.1 |
| 14" | 603. 5 | 69.9 | 412. 8 | 431. 8 | 355. 6 | 228. 6 | 304. 8 | 527. 1 | 20 | 38.1 |
| 16" | 686. 0 | 76.2 | 469. 9 | 495. 3 | 406. 4 | 228. 6 | 304. 8 | 603. 3 | 20 | 41.2 |
| 18" | 743. 0 | 82.6 | 533. 4 | 546. 1 | 457. 2 | 228. 6 | 304. 8 | 654. 1 | 20 | 44.5 |
| 20" | 813. 0 | 88.9 | 584. 2 | 609. 6 | 508. 0 | 228. 6 | 304. 8 | 723. 9 | 24 | 44.5 |
| 24" | 940. 0 | 101. 6 | 692. 2 | 717. 5 | 609. 6 | 228. 6 | 304. 8 | 838. 2 | 24 | 50.8 |